Natura Timber Bungalov B4 o dispozičním řešení 4 + kk je navržen tak, aby byl maximálně energeticky úsporný, poskytoval dostatek prostoru pro pohodlný společný život 4 - 5 členné domácnosti a současně poskytoval každému obyvateli domu dostatek soukromí. Každá obytná místnost domu má přímý přístup francouzským oknem na terasu a přes ní i do zahrady.
Základním principem bungalovu B.4 je umístění vstupních dveří na opačné straně dispozice, než je terasa. Znamená to, že parkující vozidla ani přicházející návštěvníci, případně např. listonoš, nebudou nijak rušit privátní část domu s terasou, napojenou francouzskými dveřmi přímo na pokoje, ložnici i obývací pokoj.
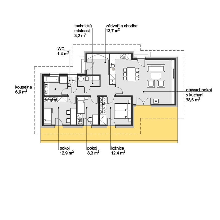
Vstupním prostorem domu, navazujícím na vstupní dveře, je prostorné zádveří s objemnou vestavěnou skříní nalevo od vstupních dveří a velkým zrcadlem na celou výšku místnosti přímo naproti nim.
Na vstupní zádveří domu navazuje chodba jako páteřní komunikace dřevostavby, z níž je možné vstoupit do všech místností bungalovu B.4.
Obývací pokoj s integrovanou kuchyňskou linkou a jídelním koutem poskytne dostatečný prostor k trávení společných chvil všem členům rodiny, sledování televize nebo stolování až šesti osob spojenému s přípravou jídla. Kuchyňská linka je dostatečně dimenzovaná k umístění vysoké spížní skříně, vysoké lednice s mrazákem, myčky nádobí a bohaté pracovní plochy. Jídelní stůl vytváří přechod mezi kuchyní a částí obývacího pokoje určenou pro sledování televize, společenské hry nebo jiné aktivity. Krbová kamna s prosklenými dvířky budou poskytovat nejen příjemný pohled na hořící oheň, ale stanou se také významným přínosem pro energetickou bilanci dřevostavby.
S přilehlou terasou je obývací pokoj spojen dvoukřídlými francouzskými dveřmi, s místem pro parking vozidel potom samostatným vstupem – toto řešení umožní snadné příčné větrání domu výhodné zejména ve žhavých letních dnech. Terasa může mít různou velikost i tvar – vždy se přizpůsobí možnostem zahrady i přání uživatel bungalovu. Větší přesah střechy nad terasou před obývacím pokojem vytváří ochranu před nepřízní počasí a současně i chrání svým stínem obývací pokoj před přehříváním v létě.
Ložnice a pokoje jsou navrženy tak, aby dvě z uvedených místností byly plošně navrženy k bydlení vždy po 2 osobách, třetí pokoj, který může být také pracovnou, potom k bydlení 1 osoby. Dům je tedy připraven přijmout rodinu o různém složení. V ložnici i obou pokojích je uvažováno s umístěním dostatečných vestavěných skříní pro uložení všeho potřebného svých obyvatel. V obou pokojích je navíc možné snadno umístit psací stoly se dvěma a jedním pracovním místem.
Ložnice i každý z pokojů jsou napojeny francouzskými okny přímo na venkovní terasu, která se tak v letních i jarních měsících stává další obytnou místností bungalovu. Z terasy je možné samozřejmě přejít přímo na přilehlý pozemek.
Sociální zázemí domu bude tvořit samostatné WC a koupelna, přičemž obě tyto místnosti jsou přímo osvětlené okny. Na WC je umístěno umývátko a zavěšená WC mísa se zabudovanou splachovací nádržkou, v koupelně potom 2 umyvadla, pohodlná vana a samostatný sprchový kout.
V technické místnosti bungalovu je místo pro automatickou pračku se sušičkou, tepelné čerpadlo pro ohřev teplé vody a centrální rekuperaci.
Účel a plochy jednotlivých místností
• vstupní zádveří a chodba 13,7 m2
• obývací pokoj s integrovanou kuchyní 38,6 m2
• ložnice 12,4 m2
• pokoj 8,3 m2
• pokoj 12,9 m2
• koupelna 6,6 m2
• WC 1,4 m2
• technická místnost 3,2 m2
• terasa individuálně dle přání
• zastavěná plocha /bez terasy/ 120,0 m2
• užitná plocha /bez terasy/ 97,1 m2
Technologie
Dům je navržen jako přízemní dřevostavba typu bungalov, založený na betonové základové desce.
Nosné stěny budou realizovány z nosných SIP panelů tloušťky 170 mm – jedná se o obvodové nosné stěny a několik vnitřních stěn, které budou tvořit zavětrování stavby a akusticky oddělí obývací prostor od ložnice (www.sipeurope.eu). Použité SIP panely mají v sobě integrováno 140 mm tepelné izolace, která výrazně přispívá k nízkým provozním nákladům na vytápění tohoto bungalovu.
Zastřešení je uvažováno pomocí příhradových sbíjených nosníků, na jejichž horním líci bude plechová krytina s možností výběru barevného odstínu stavebníkem. Ve stejném odstínu s krytinou střechy budou provedeny okapové žlaby, okapové svody a oplechování venkovních parapetů oken. Uvažovány jsou krytiny a okapy firmy Lindab (viz www.lindabstrechy.cz). Na střešní krytinu bude poskytnuta záruka v délce až 40 let.
Vnější zateplení domu bude provedeno tepelnou izolací tloušťky 200 mm, která bude na vnějším líci opatřena dvojnásobnou stěrkou s integrovanou výztužnou síťkou a fasádní stěrkou v designu a odstínu dle výběru stavebníka.
Sokl domu bude na tepelné izolaci opatřen obkladem z cihelných pásků v odstínu a designu opět dle výběru stavebníka.
Okna jsou uvažována plastová v bílém odstínu s trojskly. Vstupní dveře budou plastové v odstínu dle nabídky výrobce a výběru stavebníka s bezpečnostním kováním.
Před francouzská okna je zejména z důvodu stínění uvažována montáž předokenních žaluzií s elektrickým pohonem s pouzdry integrovanými do zateplovacího systému.
Z chodby bungalovu bude možný půdním výlezem výstup do podstřešního prostoru s revizní lávkou pro kontrolu krovu a těsnosti střešní krytiny. Na výlez bude také navazovat odkládací prostor pro uskladnění lehčích předmětů v půdním prostoru, např. sezónních sportovních potřeb.
Na dolní pásnici střešní konstrukce bude zavěšen sádrokartonový podhled s parotěsnou zábranou a 400 mm tepelné izolace.
Všechny příčky v bungalovu budou sádrokartonové. Také obklad SIP panelů na straně interieru bude obložen sádrokartonovými deskami.
Vytápění bungalovu je navrženo jako podlahové elektrické s regulací elektronickým termostatem individuálně v každé místnosti, doplněné o elektrický topný žebřík v koupelně a krbovými kamny pro spalování dřevních peletek nebo dřeva (podle preference stavebníka) v obývacím pokoji. Místo elektrického podlahového topení lze dům vytápět tepelným čerpadlem vzduch – vzduch, které v letních měsících může sloužit i k chlazení interieru dřevostavby.
Návrh bungalovu předpokládá využití centrální rekuperace.
Celková tloušťka obvodové stěny navržené dřevostavby bude 390 mm a bude v ní integrováno celkem 340 mm tepelného izolantu. Pokud by stejné tepelně – technické parametry měla mít obvodová stěna zděné stavby, měla by tloušťku cca 600 mm. Rozdíl v tloušťkách obvodových stěn obou konstrukčních systémů vede k tomu, že při stejné zastavěné ploše domu bude v dřevostavbě realizované ze SIP panelu o cca 12 m2 větší obytná plocha než u zděného domu. Zděný dům i dřevostavba se stejnými tepelně – technickými vlastnostmi lze pořídit za cca stejnou cenu, takže stavebník dřevostavby ze SIP panelů získá 12 m2 obytné plochy zdarma!
Cena domu
V případě, že stavebník zajistí dokončení domu vlastní péčí, bude pouze jeho věcí za kolik jednotlivé materiály a práce pořídí, dočká se však rozsáhlé pomoci a podpory od projektanta i dodavatele hrubé stavby, takže se obtíží s dokončováním nemusí obávat. 2 913 000 Kč
Pokud bude dokončování stavby bungalovu realizovat společnost NATURA TIMBER HOUSE s.r.o., bude na provedení dokončovacích prací stavebníkovi předložen nabídkový položkový rozpočet, sestavený na základě jeho individuálních požadavků na design a provedení kompletačních konstrukcí a prvků.
Stavebník, který zvolí formu dodávky na klíč, získá typovou projektovou dokumentaci bungalovu B4 ve stupni pro stavební povolení zdarma. Za zvláštní úhradu bude typová projektová dokumentace dřevostavby doplněna a upravena následovně:
• osazení na pozemek stavebníka
• radonový průzkum
• hydrogeologický průzkum k návrhu likvidace přebytků dešťových vod
• posudek k odnětí zastavěné plochy ze zemědělského půdního fondu
• napojení bungalovu na inženýrské sítě (vodovod, splašková kanalizace, elektro, případně kabelová datová přípojka)
• řešení dopravního napojení pozemku na komunikaci
• umístění akumulační nádrže na dešťovou vodu + likvidace přebytků vsakem
• individuální úpravy dispozice podle požadavků stavebníka
• individuální úprava sestavy kuchyňské linky
Součástí ceny a tím i dodávky domu Natura Timber Bungalov B4 ve stupni k dokončení je zejména:
• základová deska pro rovinatý pozemek
• izolace proti radonu a zemní vlhkosti pro střední radonové riziko, aplikace pod svislými nosnými konstrukcemi
• svislé nosné konstrukce – všechny obvodové stěny a vnitřní ztužující stěny
• nosná konstrukce zastřešení
• plechová krytina
• okapové žlaby + provizorní okapové svody
• okna a vstupní dveře
